Agro-eco-landscape and a long house on the island of Silba
ArchitectureOn a waterless island, this house collects enough water for its own needs, while channeling biologically purified wastewater to the garden.
We wanted to rely on natural resources on an island that receives water only by ship, and has no sewage system. This will be increasingly important as the droughts worsen due to the climate crisis. Wise water management will allow the clients to grow a garden and thus support the island's biodiversity.
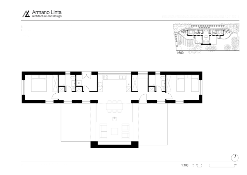
We wanted to help them enjoy as close a contact with the garden as possible, without withering away in the scorching sun. The living room is therefore designed as a porch protruding from the rest of the house. This high „porch“ is glazed towards the eastern and western terraces so the clients can enjoy the cool western terrace on summer mornings and the cool eastern terrace on summer evenings, while enjoying the warm eastern terrasce on winter mornings and the warm western terrace on winter evenings. In the centre of the house, where the „porch“ meets the elongated part of the house, there is the centre of life: the kitchen.
Sustainability is applied in the following ways:
- economic analysis of using local stone for the load-bearing structure (it was not feasible so the house is made with bricks and reinforced concrete, which unfortunately has a bigger carbon footprint)
- feasibility analysis for various renewable-energy options allows for an informed decision about heating, cooling and hot-water systems
- high living space with natural light coming from three sides achieve the greatest feeling of spatiousness in as few square meters as possible
- openings on different sides of the house allow efficient cross ventilation and minimises the need for air conditioning
- two terraces allow enjoying shade in the summer and sun in the winter, as well as passively heating the interior while avoiding overheating
- near-zero-energy-building standard
- thick mineral wool insulation
- solar collectors for hot water
- air-air heat-pump (inverter AC) for heating and cooling
- enough roof space for the future photovoltaics
- collecting and filtering rainwater for all houshold uses, including drinking (!)
- biological wasterwater purification which allows garden irrigation
- positioning the house near the northern edge of the plot, which provides garden space
- designing in close collaboration with the clients, which creates spaces that best support their wellbeing
- the house is low and strives to be inconspicuous in the landscape
- the main contractor is based on the island, which contributes to the local economy.
What could have been more sustainable?
In addition to the building-material carbon-footprint issue, the house will for some time be the family's home only for a part of the year, which raises the issue of how justified it is to use natural resources to build a space that is not used all the time. However, the family plans to completely move to the island in due time, which will solve this issue.
Agro-eco-landscape authors: Igor Zlojtro and Veljko Armano Linta


